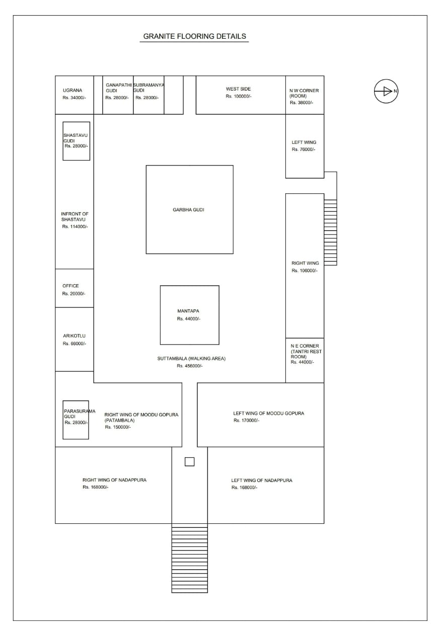
Granite Laying Project - Commenced July, 2019
A Special General Body Meeting of the Jeernodhara Committee was held on 21.07.2019 at 3 PM at temple premises. All the office-bearers of the differenet wings of the Jeernodhara Samithi - including Mathrusamithi, Youth wing, Pradeshika Samithis, Dharmashastha seva sangha, Singari mela, Bhajana Mandiras of Agalpady, Mavinakatte, Guliggana Katte seva samithi etc attended the meeting.
The main agenda for the meeting was to review the works completed thus far, to plan for the ambitious Granite laying project and to plan to meet Kshethracharya with a view to fix a date for the Brahma Kalashabhisheka.
There was good constructive discussion in the meeting, which witnessed a good number of women also. The Granite Laying project plan - which was provided by our Engineering Consultant Mr. Govind. M, B.E (Civil), M.Tech (Str), C. Eng, was discussed in detail. The projected estimates for the whole project and parts there-off (for the Temple & Dhoomavathi Daivasthanam), were presented and discussed. The whole project budget was estimated to be Rs. 20,32,400. It was decided to collect donations for the project based on per square foot rate so that more people can have the chance to make their offerings. It was also decided to accept proposals from individuals or organisations for blocks of work.
It was indeed heartening to note the spontaneous, spirited response from the devotees gathered in the meeting itself. On the spot offers of Rs. 8,78,400 were the pleasant surprise of the evening. Some other clubs, samithis promised to underwrite parts of the project. There was also promise to go on a collection drive for the project. Mr. Vinod Kumar Pilankatta, working in Kuwait promised to collect money for the same from there. He was handed over a receipt book by the Trustee & Jeernodhara Samithi.
It was resolved to seek an early date in Uttarayana for the Brahma Kalashabhisheka by meeting the Kshethra Thanthri after the Ashada maasa. It was further decided that Executive committee members & Trustee shall meet the Thanthri at his residence on August 24th, 2019 afternoon - First "Shona Shanivara" day.

Approximate Measurement Details for Granite Flooring
